Mehrfamilienhaus Offenbach
FULL-SCREEN SLIDER
FULL-SCREEN SLIDER
FULL-SCREEN SLIDER
Previous
Next
Büro Zinkler
Projekte
Wettbewerbe
Büro
Presse
Jobs
Kontakt
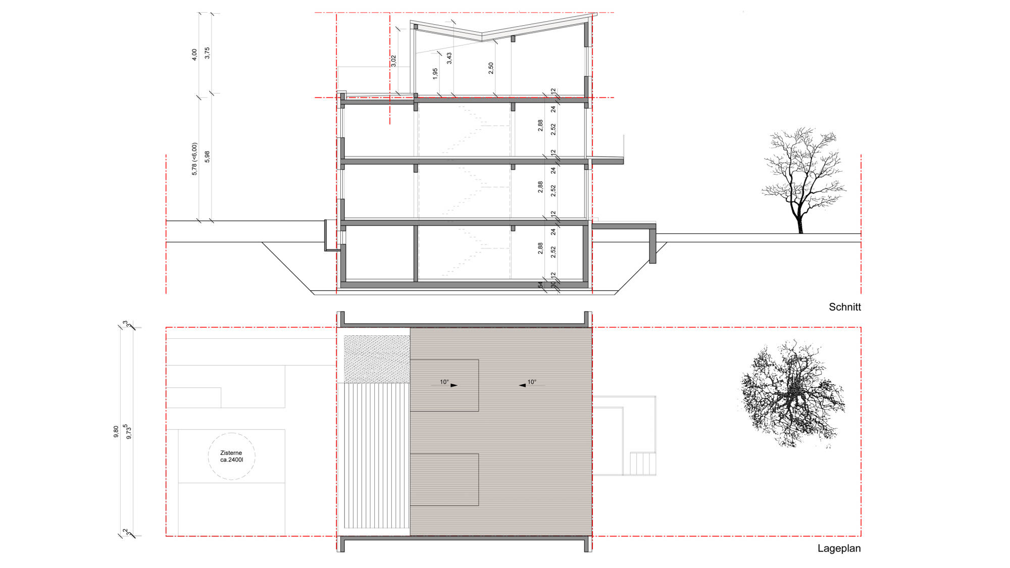
Vorentwurf für ein Mehrfamilienhaus in Offenbach Bieber, Julie Heraeus-Straße
- BGF Gesamt: 473 m²
- Wohnfläche: 238 m²
- Kostenschätzung mit Kostengruppen nach DIN 276:
Netto: ca. 634.000 € (inkl. Sicherheitszuschlag 3%)
Bauherr: Privat
Impressum
Datenschutz
Kontakt
© Copyright 2020
Free AI Website Creator